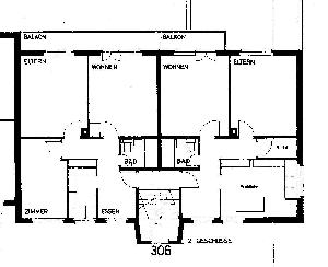
Die Wohnung liegt an sonniger Lage nahe Bus und verfügt über einen grosszügigen Balkon, Schlaf- und Wohnzimmer mit Parkettboden, modernes Bad, moderne Essküche (renoviert 2017).
Parkplatz Fr. 40.00
Haben wir Ihr Interesse geweckt? Wir freuen uns auf Ihre Kontaktaufnahme!
Sie sind nicht eingeloggt. Dieser Artikel ist nur für Abonnenten sichtbar.
Wenn Sie bereits ein Abonnement der Schaffhauser Nachrichten haben, können sie alle Artikel unserer Online Ausgabe lesen. Einfach registrieren und loslegen.
Online Schnupper-Abo
Ein Monat geschenkt
danach CHF 34.- pro Monat
Testen sie die Schaffhauser Nachrichten online, als ePaper oder in unserer App.
Jahres-Abo bestellen
ab CHF 34.- pro Monat
Testen sie die Schaffhauser Nachrichten online, als ePaper oder in unserer App.