Einzigartige Maisonette-Wohnung im Herzen der Neustadt
Neustadt 15
8200 Schaffhausen

Objekttyp
Wohnung
Zimmer
4.5
Verfügbar ab
01.10.2025

Preis Netto
CHF
2,100.00
Nebenkosten
CHF
390.00
Preis Brutto
CHF
2,490.00

Das Wichtigste in Kürze

Lage

Öffentlicher Verkehr: 50 Meter
Einkauf: 50 Meter

Kontakt

Dr. Kurt Peyer AG
Daniel Ruff
Schlagbaumstrasse 6
8201 Schaffhausen
052 632 90 85
Die Liegenschaft befindet sich mitten in der Neustadt und bietet einen traumhaften Blick auf den Munot, das St-Johann-Münster und die malerische Altstadt.

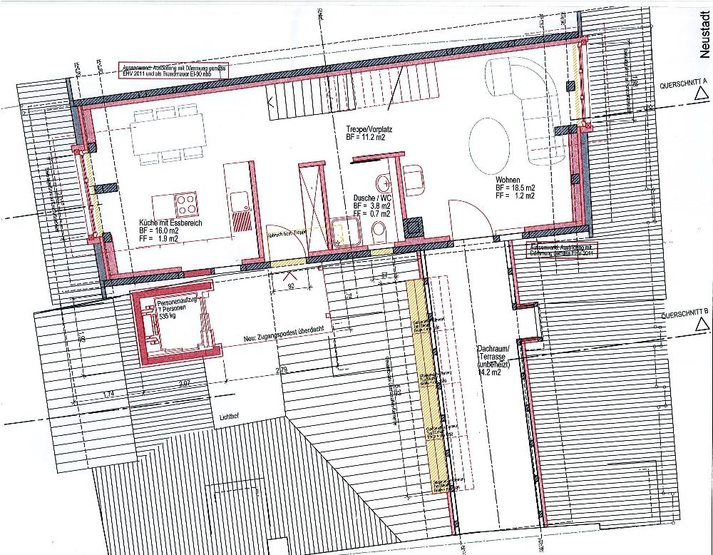
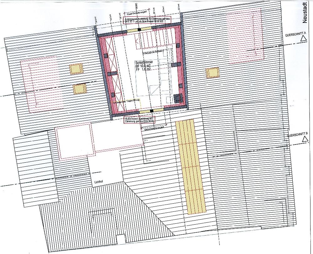
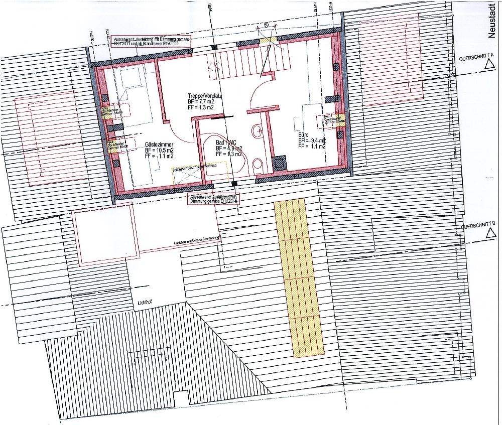
Diese exklusive Wohnung über drei Stockwerke vereint stilvollen Altstadtcharme mit einem modernen und hochwertigen Ausbau. Ein Zuhause, das durch seine Raffinesse und Gemütlichkeit besticht.

Highlights der Wohnung:

- Hochwertige Küche: Die moderne Küche ist mit Top-Küchengeräten ausgestattet, darunter ein Steamer, und bietet Ihnen höchsten Komfort für kulinarische Erlebnisse.

- Zwei stilvolle Badezimmer:
Ein Badezimmer mit einer grosszügigen Badewanne mit Waschturm. Ein weiteres Badezimmer mit einer komfortablen Dusche.

- Gemütlichkeit pur: Ein Schwedenofen im Wohnzimmer sorgt für wohlige Wärme an kühlen Tagen.

- Praktischer Stauraum: Ein Reduit bietet zusätzliche Ablagefläche.

- Komfort und Privatsphäre: Der Lift führt direkt in Ihre Wohnung. Der Balkon lädt dazu ein, die frische Luft und schöne Sommerabende zu geniessen.

Alle Räume sind mit hochwertigem Parkett ausgestattet.

Diese Maisonette-Wohnung ist ideal für Menschen, die das Besondere suchen – eine einzigartige Kombination aus historischem Charme und modernem Wohnkomfort in einer zentralen Lage. Bahnhof und Stadtzentrum in wenigen Gehminuten erreichbar.

Lassen Sie sich bei einer Besichtigung von dieser außergewöhnlichen Wohnung verzaubern. Wir freuen uns auf Ihre Kontaktaufnahme!

1 Parkplatz für Fr. 120.00 verfügbar


Irrtum und Änderungen vorbehalten. Die Grundrisse weichen teilweise vom effektiven Ausbau ab.

Besichtigung

Daniel Ruff
Telefon: 052 632 90 73